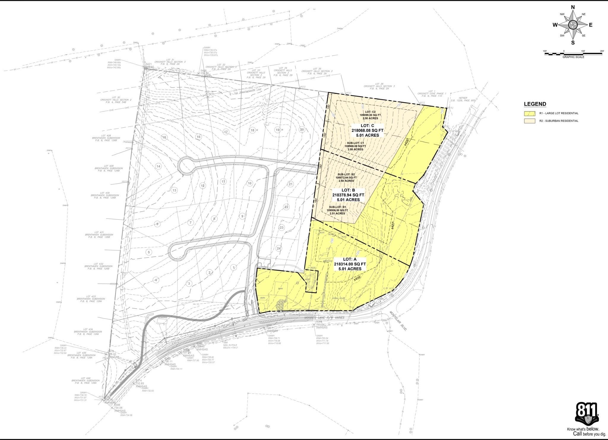
8330 Moores Ln Lot C Brentwood, Tennessee 37027
Case Study: Prime Brentwood 5+ Acre Estate Lot
Sale Price: $1,314,000
Location: Primm Farm Area, Brentwood, TN
Status: Bidding Closed
Overview
In the heart of Brentwood’s prestigious Primm Farm corridor, this 5+ acre estate lot offered an increasingly rare opportunity—space, privacy, and convenience in one of Williamson County’s most desirable zip codes.
Represented by Luxury Homes International, this property exemplified how precise positioning, local expertise, and global exposure can bring extraordinary attention to premium undeveloped land.
Property Highlights
Expansive 5+ Acre Setting: A gently rolling, build-ready estate lot surrounded by mature trees and scenic privacy.
Exclusive Gated Entry: Private access directly off Moores Lane, providing both seclusion and ease of entry.
No HOA Restrictions: Full freedom to design and build your dream home without architectural or community limitations.
Prestigious Location: Moments from I-65, Cool Springs, Brentwood, Franklin, and Nashville—offering convenience without compromise.
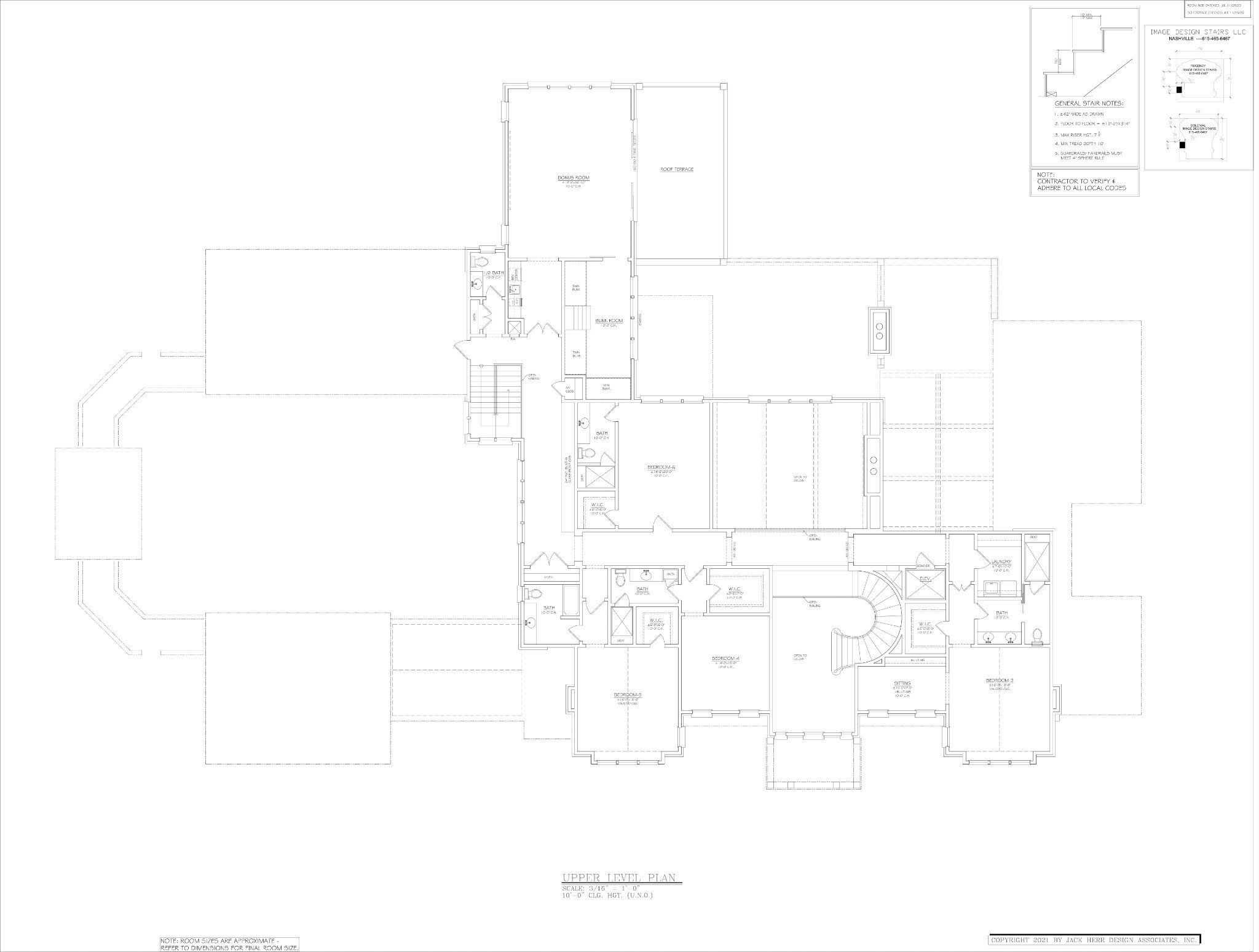
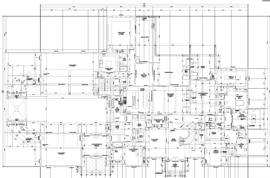
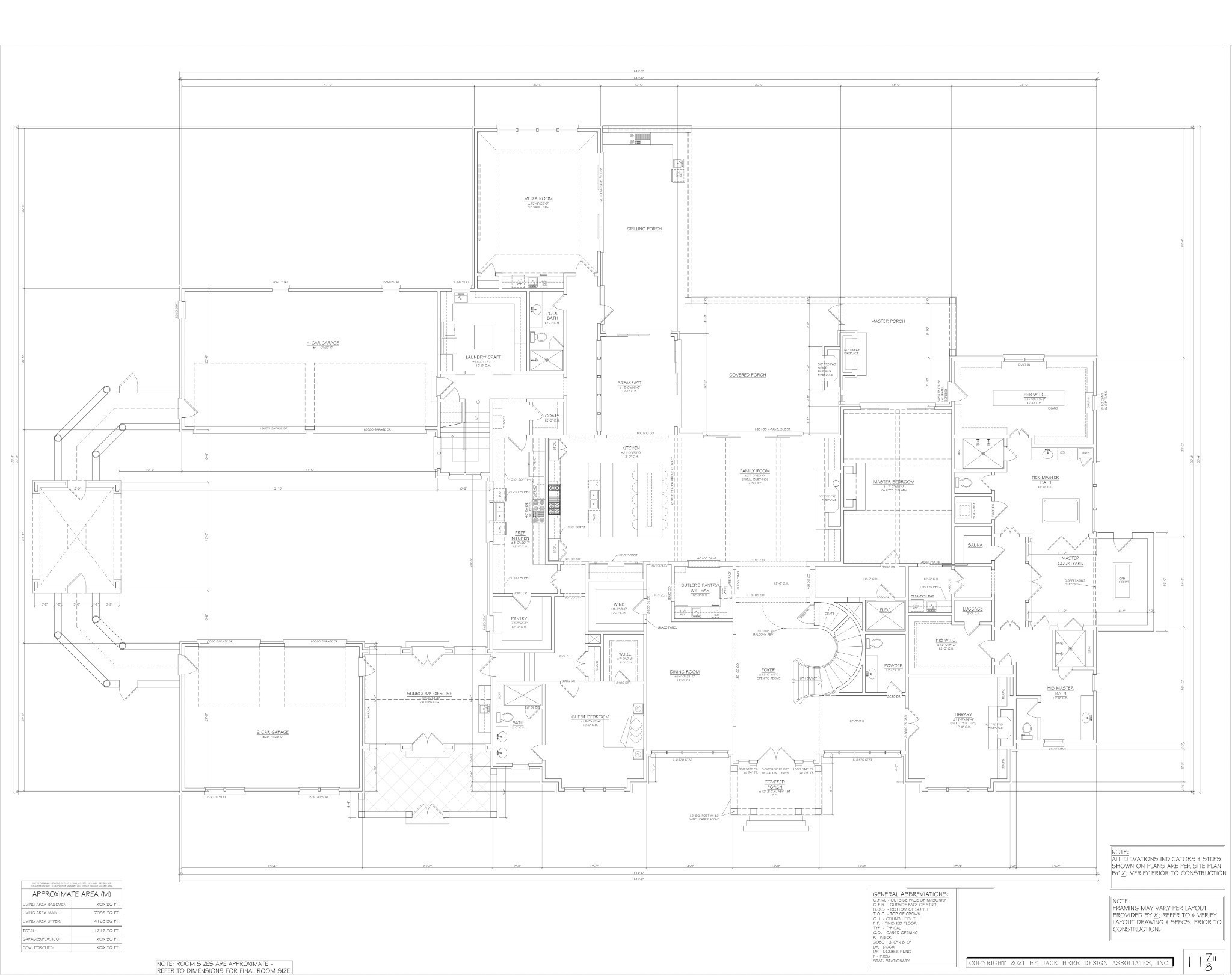
Visionary Potential: Example house plans showcased the scale and style possible, inspiring buyers to envision their own custom luxury retreat.
Our Strategy
LHI’s approach combined local precision with luxury-level marketing execution to attract high-caliber buyers seeking rare land opportunities in Brentwood.
Our campaign included:
High-impact aerial videography and digital mapping to emphasize acreage and location.
Exposure through Luxury Home Magazine, regional real estate media, and national digital ad networks.
Global syndication to reach relocation and investor audiences.
On-site signage and private-tour scheduling for pre-qualified luxury buyers.
This blended online and offline strategy positioned the property not just as land—but as the foundation for a legacy estate.
The Result
Through strategic exposure and direct engagement with qualified buyers, the property sold swiftly, reinforcing the demand for premium estate lots in Brentwood’s limited-inventory luxury segment.
The sale highlighted LHI’s ability to market land with the same storytelling power, visual polish, and buyer reach typically reserved for completed luxury homes.
Key Takeaway
Luxury Homes International continues to lead the Brentwood and Franklin markets with record results—whether marketing landmark homes or exceptional land opportunities.
Our tailored marketing, deep local relationships, and international visibility ensure every listing reaches its full potential.
Property sold
PHOTO GALLERY
